Electrical Circuit Designing

New Electrical Wiring  Design    

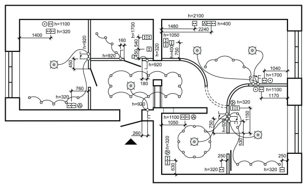
>Room-by-room wiring layouts.
>Panel board schedules.
>Load calculations.
>Lighting and power distribution.
>Conduit sizing and routing.
>Single-Line (One-Line) Diagrams.
>Overview of power flow from the main supply to sub-panels and loads.
>Wiring Schematic Diagrams.
>Detailed circuit-level connections between components.
>Cable/Conduit Sizing  Based on current, voltage drop, length, etc.
>Protection Devices
Fuses, circuit breakers, RCDs, RCBO's, AFDD , SPD surge protection.
>Codes and Standards
IET BS7671 :18th Edition Wiring Regulations.

Electrical Installation

Full or Partial Electrical Wiring 

>Full / Partial electrical rewiring is the process of completely replacing all the electrical wiring, outlets, switches, and the main distribution board (fuse box or consumer unit) in a building. This is usually done to bring the system up to modern safety standards, increase capacity for new appliances, or as part of a renovation.
>Separate circuits for:
Lighting,Power outlets,Kitchen appliances,,Heating and air conditioning, Electric showers or EV chargers.
>Circuits sized appropriately for load and distance.Proper earthing to ensure safety during faults. Bonding of gas and water pipes to the electrical system

Fault

Fault finding in Existing Electrical Wiring 

>An electrical fault is any abnormal condition in an electrical circuit that disrupts the normal flow of current. Faults can lead to shock hazards, equipment damage, fire risks, or power failure, understanding the type of faults are critical for both safety and reliabilityThe most common faults are,
>Circuit breaker keeps tripping.
>Lights flicker or dim.
>Sockets not working.
>Electric shock from appliances.
>Burning smell or scorch marks.
>Buzzing or humming sounds. 
>No electric supply in your home or building


Fire

Building Automation System Installation and Repair/ Upgrade of Existing System

>Designing new BMS panels or replacing existing obsolete BMS system.
>Typical system components are HVAC (Heating , Ventilation, Air Conditioning), lighting control, access control and security, fire detection and alarms, energy management, emergency power & generators, shading/blinds and smart windows.
>Providing remote monitoring , also monitoring via local control panel display. IoT(Internet of Thing) Integration.
> Fully automated system design with predictive maintenance capabilities.

Programmable Logic Controllers Programming and Installation and replacement

>A Programmable Logic Controller (PLC) is a rugged, industrial-grade digital computer used to automate machines and processes in factories, buildings, and infrastructure. It receives inputs from sensors, processes logic, and controls outputs like motors, lights, or valves.
> Programming of new and existing PLC system , troubleshoot and fault fixing in following PLC's , Trend  Controllers , Siemens, Allen Bradley, Mitsubishi ,Schneider Electric, IoT Arduino Finder OPTA, Portenta Machine Control, Interfacing wide variety Motor Drive System, VFD's and HMI displays

EICR (Electrical Installation Condition Report)

>Covering domestic , commercial and industrial Electrical Installation Condition Report for  existing wiring. The comprehensive report detailing the health and safety of electrical installation with in the building.
>Assess the safety and condition of the electrical system.
>Identify damage, deterioration, or safety hazards.
>Ensure compliance with current electrical regulations ( BS 7671:2018 Amendment 3:2024 IET Wiring Regulations)
>Recommend repairs, improvements, or upgrades if needed.

Electrical Circuit Designing

Electrical Radiator & Underfloor Heating 

>Installation of Convection Radiators, Oil-filled Radiators,Panel Radiators,Fan Heaters and Infrared Radiators.
>Removing old  chunky Economy 7 wall mounted heaters.
>Suggesting highly energy efficient and energy saving wall mounted electrical heaters for all kind of residential ,HMO's, commercial and industrial premises
>Installation of energy efficient under floor heating mat and controls.

Electrical Installation

Broadband / Network Cabling and Internet Access Points and CCTV

>Network cabling (Cat5e,Cat6)  installation in each room and  access point to each floor of the building. 
>  Installation of patch panel and broadband router mounting cabinet.
>Installation and configuring network routers,  switches/hub for reliable and guaranteed internet services reaches all the corners of the building.
> HMO's ,Restaurants, commercial buildings , offices ,shops almost all kinds of premises.
>POE enable CCTV system installation, setting and configuring cameras and DVR, providing remote access 24/7.

Fault

Emergency Lighting Installation & Certification

> Design ,installation,commission and Certification  of emergency  lighting system according to the requirement of BS 5266.
> Emergency lighting yearly inspection and testing certificates for HMO's, commercial and industrial buildings
> Repair and replacement of faulty emergency lighting system.
> Installation , commission and testing of DALI (Digital Addressable Lighting Interface) enable and central battery operated emergency lighting system.

Fire

Fire Alarms and Smoke Detectors Installation & Certification 

> Design,installation,commission and Certification of fire alarm system according to the requirement of BS 5839-1 (Commercial) BS5839-6(Domestic)
> Fire alarms and smoke detectors yearly inspection and testing certificates for, domestic , HMO's, commercial and industrial buildings
> Fire alarm panel and smoke detector repair and replacement service. 

 Domestic Commercial & Industrial Lighting

> Lighting design and installation for large premises.
> Automatic PIR lighting installation for HMO's ,Office, School and required area where intervention of light switch not required.
>Replacement of faulty lightning.
>Upgrade to energy efficient LED enclosed lighting , LED tube lighting.
>Outdoor IP rated LED lighting for back and front yards.
>DALI and DALI Dim Lighting installation  
>RGB LED strip lighting 

EV Charging

>Approved EV charger installers.
>Level 1 & 2  charger installation for standard household.
>Dedicated distribution board and  circuit installation for car charger so it may not interrupt the existing supply to the property.
>Supply most of the common and approved EV charger brand Ohme, Zappi, Rolec, Anderson.Sync EV, Project EV,EO, Tesla etc

FOLLOW US